Island Life Realty Group Aruba
Noord, Boroncana
USD 615.000 (AWG 1.100.850)
Pool

Property details

Casa Valor

🏡 Casa Valor – Boroncana, Noord ✨
A home built on courage, love, and island vibes.

Welcome to Casa Valor, a bold two-story retreat in the heart of Boroncana. This home blends character, comfort, and Caribbean charm—perfect as your forever oasis or a smart investment.

Highlights:
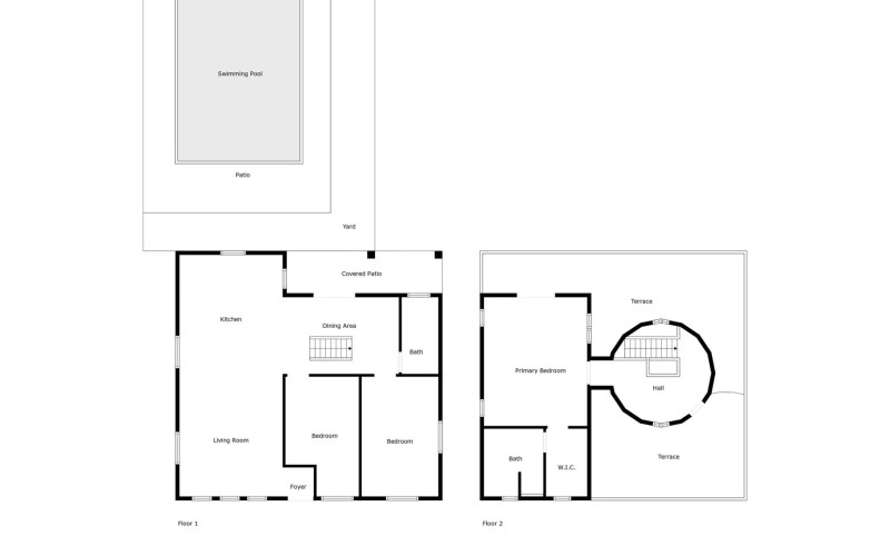
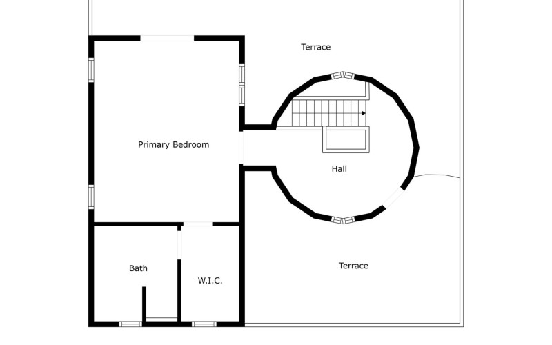
✨ 3 spacious bedrooms | 2 full bathrooms
✨ Expansive 180° balcony with panoramic views
✨ Private pool + lush outdoor spaces for entertaining
✨ Covered carport with room for multiple vehicles
✨ Bright, open layout with high ceilings & natural light
✨ Prime location—just minutes from Aruba’s beaches, high-rise hotels & shopping

From sunrise coffee on the balcony to sunset dips in the pool, Casa Valor isn’t just a house—it’s a lifestyle. 🌅🌴

Request more information

Contact agent

Amenities

Location Noord
Bedrooms 3
Bathrooms 2
Build up size 135 m² (1.453 Sq Ft)
Pool Yes
Pool type Private pool

Map

Similar listings